• Maison - 80 m² - 4 pièces
  • Maison - 80 m² - 4 pièces
  • Maison - 80 m² - 4 pièces
  • Maison - 80 m² - 4 pièces
  • Maison - 80 m² - 4 pièces
240 000 €
80 m²
4 pièces
3 chambres

Description :

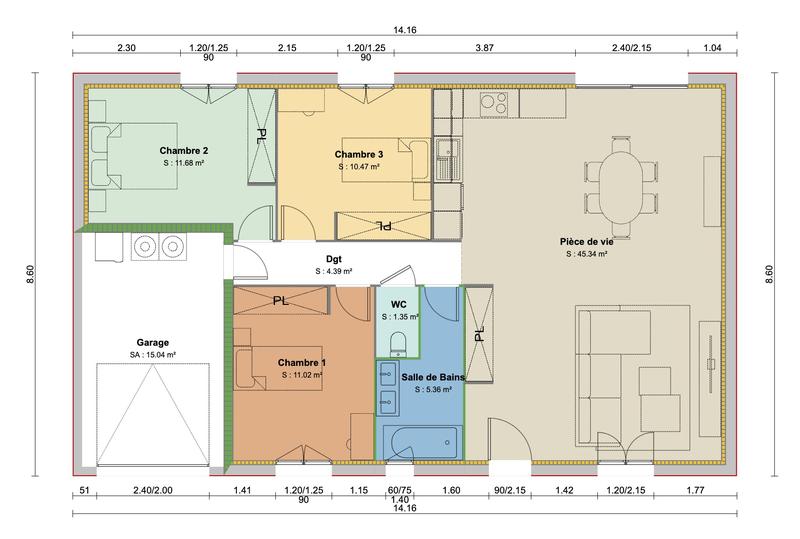
OFFRE EXCEPTIONNELLE – 50 ANS DU GROUPE 10 m² OFFERTS + PACK CUISINE + PACK DÉCO OFFERTS !Maisons PUNCH est heureux de vous présenter son tout nouveau projet de construction dans la charmante commune de Brussieu.Saisissez cette opportunité rare de devenir propriétaire d’une maison moderne et confortable de 80 m² de plain-pied, implantée sur un terrain de 420 m².Caractéristiques de la maison :• Surface habitable : 80 m²• Type : Plain-pied• Chambres : 3 chambres spacieuses• Salle de bain : 1 salle de bain contemporaine• Espace de vie : Grand séjour lumineux avec cuisine ouverte• Extérieur : Jardin privatif, idéal pour profiter des beaux joursLes + du projet :• Emplacement idéal : à Brussieu, à proximité des écoles, commerces et commodités• Conception moderne : matériaux de qualité, finitions soignées et respect des normes RE 2020 pour une maison économe en énergie• Plans personnalisables : ajustez votre maison selon vos goûts et besoins• Accompagnement sur mesure : de la conception à la remise des clés, Maisons Punch vous guide à chaque étapeNe passez pas à côté de cette offre anniversaire exceptionnelle !Contactez-nous dès aujourd’hui pour visiter le terrain et échanger sur votre futur projet de vie.Votre contact : Kyllian DA SILVA

Afficher plus de détails

Informations sur ce bien :

L'intérieur :

  • 4 pièces
  • 80 m²
  • 3 Chambres
  • 1 Salle de bain

L'extérieur :

  • Garage

À proximité :

  • Accès voie rapide
  • Centre-ville
  • Commerces
  • Ecoles
  • Transports en commun

Autres :

  • Style :
    Traditionnelle
Synthèse
Maison à Brussieu
240 000 €
Surface : 80 m²
Prix au m² : 3 000 €
Transaction :
Neuf
Référence :
6721 Da Silva Kyllian
Date de publication :
Hier à 18:45
Maison - 80 m² - 4 pièces
Agent
Maisons Punch - Villefranche
Maisons Punch - Villefranche
Appeler
Écrire
Mettre en avant cette annonce
Signaler une erreur

Localisation :

L'adresse exacte n'est pas renseignée. Le bien se situe dans cette zone.
Annonces similaires
Annonces immobilières récentes