• Local commercial - 31 m² - 1 pièce
  • Local commercial - 31 m² - 1 pièce
  • Local commercial - 31 m² - 1 pièce
  • Local commercial - 31 m² - 1 pièce
  • Local commercial - 31 m² - 1 pièce
128 170 €
31 m²
1 pièce

Description :

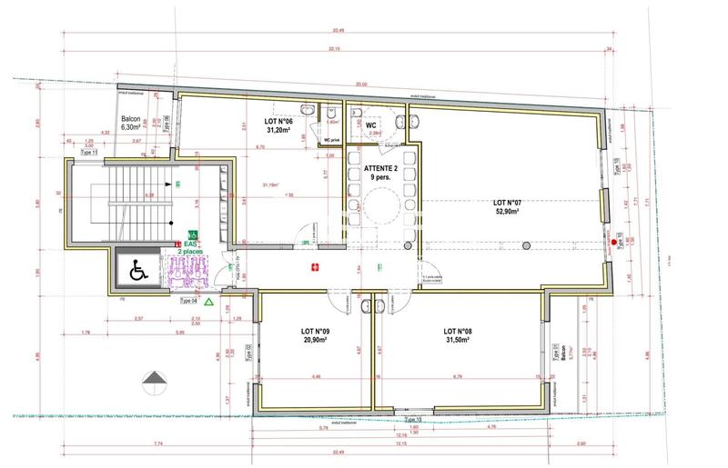
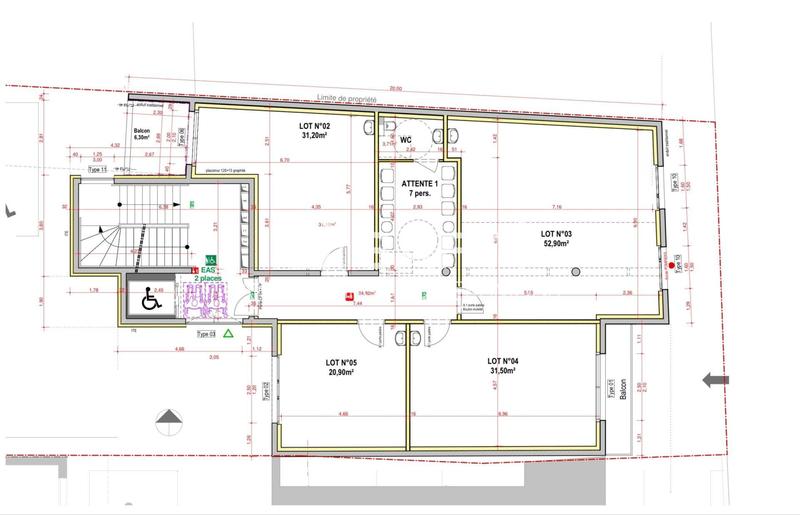
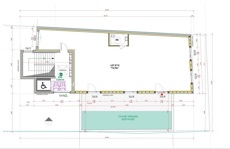
Situé à Brunstatt-Didenheim, commune dynamique du Haut-Rhin, ce local professionnel de 31,20 m² pour professionnels de santé et para-médicaux, bénéficie d'un emplacement stratégique à proximité immédiate d'une pharmacie, inséré dans un pôle de santé regroupant 10 lots. Ce pôle de santé offre un cadre propice à l'installation de professionnels de santé, De plus, la ville de Brunstatt-Didenheim offre un environnement attractif avec ses nombreux commerces et services, idéal pour développer son activité professionnelle. Venez découvrir ce local professionnel de 31,20 m² avec lavabo, situé au 1 er étage avec accès ascenseur normes PMR, qui propose une architecture de qualité au sein d'un bâtiment de 4 niveaux. Il a accès à un balcon privatif. Les prestations comprennent les espaces suivants : salle d'attente, toilettes accès PMR. Tous les locaux professionnels de 31,20 m² à 115 m² offrent des finitions qualitatives pour un confort optimal. Vendu en VEFA avec des frais de notaire réduits, cette opportunité inclut une aide à l'installation pouvant aller jusqu'à 50 000€ car Brunstatt-Didenheim est une zone prioritaire. Les places de stationnement disponibles au sein du pôle de santé viennent compléter les nombreux atouts de ce bien, dont la livraison est prévue au printemps 2026. Système individuel de climatiseur réversible air-air (pompe à chaleur), type plafonnier avec télécommande. Le bien comprend 5 lots, et il est situé dans une copropriété de 10 lots (les charges courantes annuelles moyennes de copropriété sont de 1245 € et le syndicat des copropriétaires ne fait pas l'objet d'une procédure citée à l'article L. 721-1 du code de la construction et de l'habitation). Les informations sur les risques auxquels ce bien est exposé sont disponibles sur le site Géorisques : www.georisques.gouv.fr Prix de vente honoraires d'agence inclus : 128 170 € HT + 25 634 € TVA, soit 153 804 € TTC Prix de vente hors honoraires d'agence : 121 761,5 € HT + 24 352,3 € TVA, soit 146 113,8 € TTC Honoraires d'agence : 6 408,5 € HT + 1 281,7 € TVA, soit 7 690,2 € TTC (5.26 % TTC du prix de vente hors honoraires d'agence) Honoraires charge acquéreur Contactez votre conseiller SAFTI : Armelle GIROUD de FRAMOND, Tél. : 06 64 40 01 82, E-mail : armelle.girouddeframond@safti.fr - EI - Agent commercial immatriculé au RSAC de Mulhouse sous le numéro 918 561 135.

Afficher plus de détails

Informations sur ce bien :

L'intérieur :

  • 1 pièce
  • 31 m²
    Informations complémentaires
    Surface habitable : 31 m²

Autres :

  • Année de construction :
    2024
  • Mitoyenneté :
    Non
  • Étage :
    1er étage
    Informations complémentaires
    Nombre d'étages de la construction : 2

Copropriété :

  • Copropriété :
    Oui
  • Nombre de lots :
    10
  • Charges annuelles :
    1 245 €
Synthèse
Local commercial à Brunstatt
128 170 €
Surface : 31 m²
Prix au m² : 4 135 €
Transaction :
Achat (professionnels)
Référence :
1555390
Date de publication :
Il y a plus de 7 jours
Local commercial - 31 m² - 1 pièce
Agent
SAFTI
SAFTI
Armelle GIROUD DE FRAMOND
Appeler
Écrire
Mettre en avant cette annonce
Signaler une erreur

Localisation :

L'adresse exacte n'est pas renseignée. Le bien se situe dans cette zone.
Annonces similaires
Annonces immobilières récentes