• Appartement - 84 m² - 4 pièces
  • Appartement - 84 m² - 4 pièces
  • Appartement - 84 m² - 4 pièces
346 000 €
84 m²
4 pièces
3 chambres

Description :

Sous compromis : VOTRE APPARTEMENT ET SA GRANDE TERRASSE N'ATTENDS PLUS QUE VOUS

À Bruges, à quelques minutes seulement du centre-ville et de toutes les commodités, découvrez une résidence où nature et quotidien s'accordent harmonieusement.

Pensée comme un havre de verdure, la résidence s'implante dans un écrin paysager soigneusement repensé. Une allée serpente à travers les bosquets et plantes tapissantes, menant à une clairière ombragée et aménagée pour la détente en famille ou entre voisins. Ce jardin vivant, protégé et pédagogique, met en valeur la biodiversité locale grâce à des panneaux explicatifs sur la faune et la flore. En façade, les généreux massifs arbustifs et plantes grimpantes prolongent la voie verte et le futur square public jusqu'au pied des immeubles, intégrant pleinement la résidence dans son environnement naturel et urbain.

La situation est idéale : le tramway, la gare et les transports en commun se trouvent à moins de 5 minutes à pied. Le centre-ville de Bruges, quant à lui, est accessible en seulement 10 minutes de marche. Les commerces et services essentiels, eux, sont rapidement accessibles pour vous garantir un quotidien pratique et confortable.

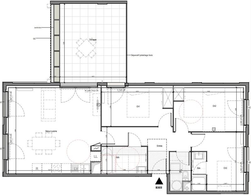
Au dernier étage ce superbe appartement T4 de 84 m² se dévoile à travers une pièce de vie de 31 m² orientée Sud-Ouest, parfaite pour vos moments de partage, et prolongée par une terrasse végétalisée de24 m², véritable oasis privative pour profiter du plein air en toute intimité.

Le coin nuit se compose d'une suite parentale avec salle d'eau privative, de deux chambres spacieuses dotées de placards intégrés, d'une grande salle de bain moderne ainsi que d'un WC indépendant, pour un confort familial optimal.

Conforme à la réglementation RE 2020, cet appartement vous garantit une performance énergétique de premier ordre, gage d'économies durables et de bien-être au quotidien.

Une place de parking (en sus 15 000€) complète ce bien parfaitement pensé pour vous et votre famille.

- Aucun travaux à prévoir
- Frais de Notaires Réduits
- Garanties
- RE 2020
- ...

VOTRE APPARTEMENT ET SA GRANDE TERRASSE N'ATTENDS PLUS QUE VOUS

Honoraires à la charge du vendeur. Dans une copropriété de 58 lots. Aucune procédure n'est en cours. DPE en cours. Les informations sur les risques auxquels ce bien est exposé sont disponibles sur le site Géorisques : georisques.gouv.fr.

Votre conseiller RH Patrimoine : Maxime HERVE
Agent commercial (Entreprise individuelle)
RSAC 133095555 J
RCP 13309666 J

Afficher plus de détails

Informations sur ce bien :

L'intérieur :

  • 4 pièces
  • 84 m²
  • 3 Chambres
  • 1 Salle de bain
  • 1 Salle d'eau
  • 2 Toilettes
  • Séjour de 31 m²

L'extérieur :

  • Terrasse
  • Parking

Les équipements :

  • Ascenseur
  • Accès handicapé
  • Interphone
  • Digicode

Autres :

  • Chauffage :
    Individuel, Électrique
  • Année de construction :
    2025
  • Exposition :
    Sud, Ouest
  • Vue :
    Dégagée
  • Étage :
    3ème étage (dernier)
    Informations complémentaires
    Nombre d'étages de la construction : 3

Copropriété :

  • Copropriété :
    Oui
  • Nombre de lots :
    58
Synthèse
Appartement à Bruges
346 000 €
Surface : 84 m²
Prix au m² : 4 119 €
Transaction :
Achat
Référence :
VA3081-RHPATRI
Date de publication :
Il y a plus de 7 jours
Appartement - 84 m² - 4 pièces
Agent
RH Patrimoine
RH Patrimoine
Maxime HERVE
Appeler
Écrire
Mettre en avant cette annonce
Signaler une erreur

Localisation :

L'adresse exacte n'est pas renseignée. Le bien se situe dans cette zone.
Annonces similaires
Annonces immobilières récentes