• Ferme - 199 m² - 6 pièces
  • Ferme - 199 m² - 6 pièces
  • Ferme - 199 m² - 6 pièces
  • Ferme - 199 m² - 6 pièces
  • Ferme - 199 m² - 6 pièces
  • Ferme - 199 m² - 6 pièces
  • Ferme - 199 m² - 6 pièces
  • Ferme - 199 m² - 6 pièces
  • Ferme - 199 m² - 6 pièces
  • Ferme - 199 m² - 6 pièces
424 000 €
199 m²
6 pièces
4 chambres

Description :

Ferme avec maison de Maître - 4 chambres - 200m² - terrain clos

Authenticité et confort d'une ferme rénovée avec goût.

Cette magnifique propriété, construite au 19ème siècle et rénovée en 2015, offre une surface habitable répartie sur deux niveaux ; idéale pour une grande famille et pour recevoir des amis. D'autres projets sont réalisables.

À l'entrée, vous serez immédiatement séduit par le vaste séjour et une cuisine ; lieux de vie conviviaux.

La maison compte quatre chambres spacieuses, deux salles d'eau, un bureau et des espaces de rangements au premier niveau
Possibilité d'aménager le grenier sur environ 80m² au deuxième niveau.

L'extérieur permet le jardinage, d'accueillir des animaux et pour les enfants de jouer en plein air sur un terrain clos et arboré.

La propriété est située à proximité de toutes les commodités nécessaires pour une vie pratique et agréable.
Continuons ensemble la visite en exclusivité !
Avec COFIM, vous êtes déjà chez vous !

Honoraires charge vendeur

Agent commercial COFIM - Yannick GUILLON (EI) - Tèl. : 06 28 58 56 06 - RSAC PAU 794804518
Les informations sur les risques auxquels ce bien est exposé sont disponibles sur le site Géorisques : www.georisques.gouv.fr

Honoraires à la charge du vendeur. Classe énergie D, Classe climat B Montant moyen estimé des dépenses annuelles d'énergie pour un usage standard, établi à partir des prix de l'énergie de l'année 2021 : entre 1654.00 et 2239.00 €. Les informations sur les risques auxquels ce bien est exposé sont disponibles sur le site Géorisques : georisques.gouv.fr.

Votre conseiller COFIM PAU EST : Yannick GUILLON
Agent commercial (Entreprise individuelle)
RSAC 794 804 518 .
Chez Cofim, vous êtes déjà chez Vous !

Afficher plus de détails

Informations sur ce bien :

L'intérieur :

  • 6 pièces
  • 199 m²
  • 4 Chambres
  • Cuisine séparée
    Informations complémentaires
    Séparée
  • 3 Salles d'eau
  • 3 Toilettes
  • Séjour de 40 m²
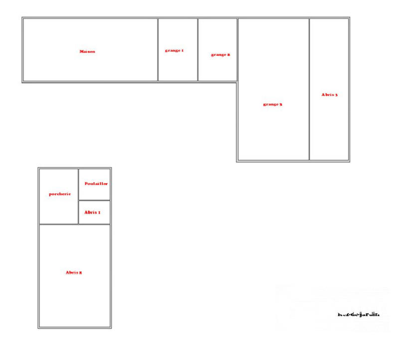
  • Cave

L'extérieur :

  • Terrasse
  • 3 Parkings
  • 6 Box

Les équipements :

  • Cheminée

Autres :

  • Chauffage :
    Individuel
  • Exposition :
    Sud
  • Vue :
    Dégagée
Synthèse
Ferme à Bruges-Capbis-Mifaget
424 000 €
Surface : 199 m²
Prix au m² : 2 131 €
Transaction :
Achat
Référence :
VM47844-COFIMIMMOBILIER
Date de publication :
Il y a plus de 7 jours
Ferme - 199 m² - 6 pièces
Performance énergétique
A
B
C
D
E
F
G
Gaz à effet de serre
A
B
C
D
E
F
G
Agent
COFIM PARTENAIRES
COFIM PARTENAIRES
COFIM PAU EST
Appeler
Écrire
Mettre en avant cette annonce
Signaler une erreur

Localisation :

L'adresse exacte n'est pas renseignée. Le bien se situe dans cette zone.

Performance énergétique :

Logement économe
A
B
C
D
242
kWh/m²/an
7
kg CO₂/m²/an
E
F
G
Logement énergivore
Faible émission de CO₂
A
B
7
kg CO₂/m²/an
C
D
E
F
G
Forte émission de CO₂
Date du diagnostic : 18 février 2024
Estimation des coûts annuels d’énergie du logement : 1 654 € à 2 239 €
Annonces similaires
Annonces immobilières récentes