• Terrain - 676 m²
  • Terrain - 676 m²
  • Terrain - 676 m²
119 000 €
676 m²

Description :

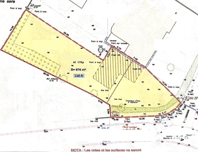
Iad France - Lucie Boue vous propose : Secteur Bourgneuf en Retz - Terrain à Bâtir de 676 m² Ce beau terrain idéalement exposé est proche des commodités et dans un secteur calme. - Libre de constructeur - Zone Ub - compteur d'eau installé et raccordement au tout à l'égout - terrain clôturé A prévoir : *viabilisation en électricité et télécom, les réseaux sont à proximité * raccordement Honoraires d'agence à la charge du vendeur. Bien non soumis au DPE. Les informations sur les risques auxquels ce bien est exposé, y compris l'obligation légale de débroussaillement, sont disponibles sur le site Géorisques : http://www.georisques.gouv.fr. La présente annonce immobilière a été rédigée sous la responsabilité éditoriale de Mme Lucie Boue mandataire indépendant en immobilier (sans détention de fonds), agent commercial de la SAS I@D France immatriculé au RSAC de SAINT NAZAIRE sous le numéro 452564842, titulaire de la carte de démarchage immobilier pour le compte de la société I@D France SAS.

Afficher plus de détails

Informations sur ce bien :

L'intérieur :

  • 676 m²

Autres :

  • Mitoyenneté :
    Non

Terrain :

  • Viabilisé :
    Non
Synthèse
Terrain à Bourgneuf-en-Retz
119 000 €
Surface : 676 m²
Prix au m² : 176 €
Transaction :
Achat
Référence :
1964387
Date de publication :
Il y a plus de 7 jours
Terrain - 676 m²
Agent
iad france
iad france
Lucie Boue
Appeler
Écrire
Mettre en avant cette annonce
Signaler une erreur

Localisation :

L'adresse exacte n'est pas renseignée. Le bien se situe dans cette zone.
Annonces similaires
Annonces immobilières récentes