Terrain constructible - 628 m² à Bouray-sur-Juine
favoris
170 000 €
Description :
Madelyne Chaudron vous propose ce terrain non viabilisé avec permis de construire validé, sur la commune de Bouray-sur-juine.
Situé dans le secteur très calme et verdoyant du petit Mesnil, ce terrain possède une surface total de 628 m2.
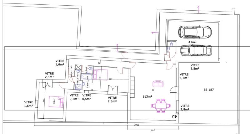
Le permis prévoit une maison de plain pied de 123m2 avec un double garage de 41m2
Pour plus d'information n'hésitez pas à me contacter ! Les honoraires sont à la charge du vendeur.
Les informations sur les risques auxquels ce bien est exposé sont disponibles sur le site Géorisques : www. georisques. gouv. fr.
Réseau Immobilier CAPIFRANCE - Votre agent commercial (RSAC N°819 463 530 - Greffe de EVRY) Madelyne CHAUDRON Entrepreneur Individuel à Responsabilité Limitée 07 72 38 70 98 - Réf.924151
Afficher plus de détails
Informations sur ce bien :
L'intérieur :
-
628 m²
Terrain :
-
Viabilisé :Non
Synthèse
Terrain constructible à Bouray-sur-Juine
170 000 €
Surface :
628 m²
Prix au m² :
271 €
Transaction :
Achat
Référence :
340934236773
Mandat :
Exclusif
Date de publication :
Il y a plus de 7 jours
Contacter l'annonceur
Agent
CAPIFRANCE
Madame Madelyne CHAUDRON
Mettre en avant cette annonce
Signaler une erreur
Localisation :
L'adresse exacte n'est pas renseignée. Le bien se situe dans cette zone.
Ventes de terrains à proximité
- 2 ventes de terrains à Lardy (2.5 km)
- 4 ventes de terrains à Janville-sur-Juine (3 km)
- 7 ventes de terrains à Itteville (3.1 km)
- 8 ventes de terrains à Saint-Vrain (3.5 km)
- 4 ventes de terrains à Cerny (5.5 km)
- 3 ventes de terrains à La Ferté-Alais (5.6 km)
- 1 vente de terrain à Boissy-le-Cutté (5.8 km)
- 3 ventes de terrains à Vert-le-Petit (6 km)
- 4 ventes de terrains à Leudeville (6.2 km)