• Loft - 106 m² - 1 pièce
  • Loft - 106 m² - 1 pièce
  • Loft - 106 m² - 1 pièce
  • Loft - 106 m² - 1 pièce
  • Loft - 106 m² - 1 pièce
630 000 €
106 m²
1 pièce
3 chambres

Description :

Un projet rare et ambitieux à Boulogne Nord - Créez le lieu de vie qui vous ressemble

Au coeur d'un environnement recherché de Boulogne Nord, se cache une opportunité aussi singulière que stimulante : un espace brut de 106 m², issu de l'ancienne réhabilitation de parkings, aujourd'hui prêt à devenir un véritable appartement familial sur-mesure.

Implanté au sein d'une cour intérieure, au calme absolu et à l'abri des regards, ce lot offre un potentiel de transformation exceptionnel.

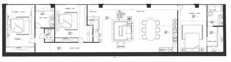
Un plan de principe a d'ores et déjà été étudié, permettant l'aménagement d'un appartement 3 chambres avec un vaste séjour, pensé pour une vie de famille contemporaine ou un projet patrimonial de qualité.

Tous les voyants sont au vert :
Permis acceptés
Accord de la copropriété
Validation du service d'urbanisme de Boulogne-Billancourt
Compteur électrique indépendant déjà en place
Toiture neuve

Le gros oeuvre est réalisé : il ne reste plus que le second oeuvre à concevoir et à façonner selon vos envies, vos besoins et votre style. Un terrain de jeu idéal pour les acquéreurs visionnaires, amateurs de projets uniques et personnalisés.

En option : possibilité d'acquérir un emplacement de stationnement en sus, un véritable atout dans ce secteur prisé.

Un bien hors normes, pour un projet hors du commun
Ici, vous n'achetez pas un appartement standard : vous créez votre futur lieu de vie, dans l'un des quartiers les plus convoités de Boulogne, à deux pas des commerces, des écoles et des transports.

Pour mesurer pleinement le potentiel de cet espace brut, rare sur le marché, et imaginer ce qu'il peut devenir, contactez nous pour organiser une visite au 06 87 48 61 25.

Un projet ambitieux, pour acquéreurs ambitieux.

Honoraires inclus de 5% TTC à la charge de l'acquéreur. Prix hors honoraires 600 000 €. Dans une copropriété de 1 lots. Aucune procédure n'est en cours. Non soumis au DPE. Les informations sur les risques auxquels ce bien est exposé sont disponibles sur le site Géorisques : georisques.gouv.fr.

Votre conseiller Boulogne-Billancourt : Directrice d'Agence - Kenza CARDOT.
Les informations sur les risques auxquels ce bien est exposé sont disponibles sur le site Géorisques : www.georisques.gouv.fr

Afficher plus de détails

Informations sur ce bien :

L'intérieur :

  • 1 pièce
  • 106 m²
  • 3 Chambres

L'extérieur :

  • Parking

Autres :

  • Étage :
    RDC

Copropriété :

  • Copropriété :
    Oui
Synthèse
Loft à Boulogne-Billancourt
630 000 €
Surface : 106 m²
Prix au m² : 5 943 €
Transaction :
Achat
Référence :
VA51739
Date de publication :
Il y a plus de 7 jours
Loft - 106 m² - 1 pièce
Agent
La-Franchise-Immo Saint-Jean-de-Védas
Kenza CARDOT
Appeler
Écrire
Mettre en avant cette annonce
Signaler une erreur

Localisation :

L'adresse exacte n'est pas renseignée. Le bien se situe dans cette zone.

Performance énergétique :

Bien non soumis au Diagnostic de Performance Énergétique (DPE)

Annonces similaires
Annonces immobilières récentes