Bureau - 1 172 m² à Boulogne-Billancourt
favoris
46 489 € / mois
Description :
Accès PMR.
Contrôle d'accès.
2 ascenseurs.
Parties communes rénovées.
RIE entièrement rénové avec terrasse.
PC sécurité.
2 paliers avec ascenseurs et escaliers.
Aire de livraison.
Fibre optique.
Climatisation réversible.
Double exposition.
Plateaux en excellent état (rénovation B et C).
Aménagement mixte espace ouvert et cloisonné.
Cuisine aménagée.
Câblage informatique.
2 doubles blocs sanitaires.
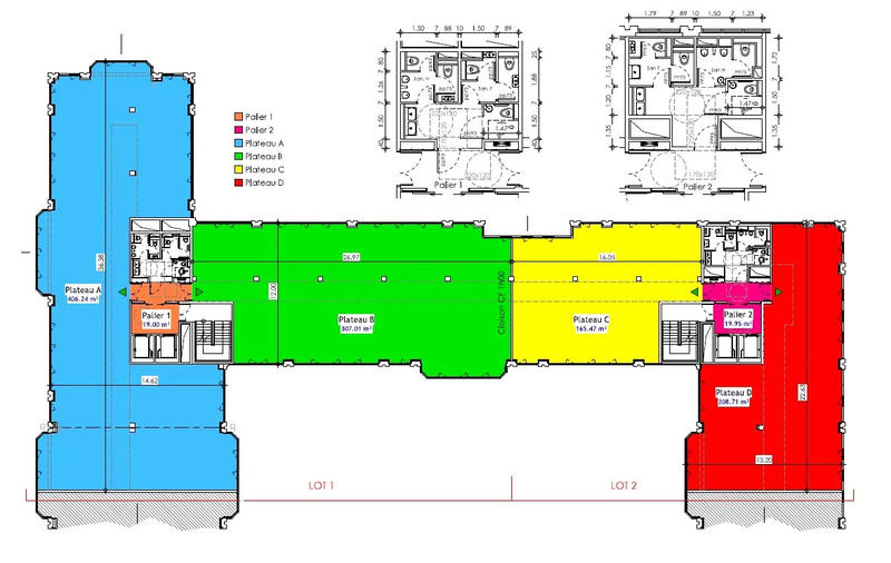
Location à la division possible :
- Plateaux A/B (736 m² environ) et/ou
- Plateaux C/D (410 m² environ)
Afficher plus de détails
Informations sur ce bien :
L'intérieur :
-
1 172 m²Informations complémentairesMin. : 392 m²
Max. : 1 172 m²
L'extérieur :
-
27 Parkings
Les équipements :
-
Ascenseur
-
Climatisation
Autres :
-
État :Trés bon état
Copropriété :
-
Taxe foncière :27 €
Synthèse
Bureau à Boulogne-Billancourt
46 489 € / mois
Surface :
1 172 m²
Transaction :
Location (locaux professionnels)
Référence :
11531
Charges :
4 297,33 €
Informations complémentaires
Les charges sont inclues dans le loyer affiché
Date de publication :
Aujourd'hui à 08:56
Contacter l'annonceur
Performance énergétique
A
B
C
D
E
F
G
Gaz à effet de serre
A
B
C
D
E
F
G
Agent
CORPIMMO
Mettre en avant cette annonce
Signaler une erreur
Localisation :
L'adresse exacte n'est pas renseignée. Le bien se situe dans cette zone.
Performance énergétique :
Logement économe
A
B
C
D
181 à 250
kWh/m²/an
7 à 11
kg CO₂/m²/an
E
F
G
Logement énergivore
Faible émission de CO₂
A
B
7 à 11
kg CO₂/m²/an
C
D
E
F
G
Forte émission de CO₂
Locations de bureaux à proximité
- 27 locations de bureaux à Saint-Cloud (2.5 km)
- 2 locations de bureaux à Sèvres (2.9 km)
- 1 location de bureau à Meudon (3 km)
- 15 locations de bureaux à Issy-les-Moulineaux (3 km)
- 1 location de bureau à Suresnes (3.7 km)
- 4 locations de bureaux à Malakoff (4.9 km)
- 5 locations de bureaux à Puteaux (5 km)
- 12 locations de bureaux à Neuilly-sur-Seine (5.4 km)
- 14 locations de bureaux à Nanterre (6.1 km)