Maison - 120 m² - 4 pièces à Bordeaux

favoris
  • Maison - 120 m² - 4 pièces
  • Maison - 120 m² - 4 pièces
  • Maison - 120 m² - 4 pièces
  • Maison - 120 m² - 4 pièces
  • Maison - 120 m² - 4 pièces
  • Maison - 120 m² - 4 pièces
  • Maison - 120 m² - 4 pièces
  • Maison - 120 m² - 4 pièces
  • Maison - 120 m² - 4 pièces
599 000 €
120 m²
4 pièces
3 chambres

Description :

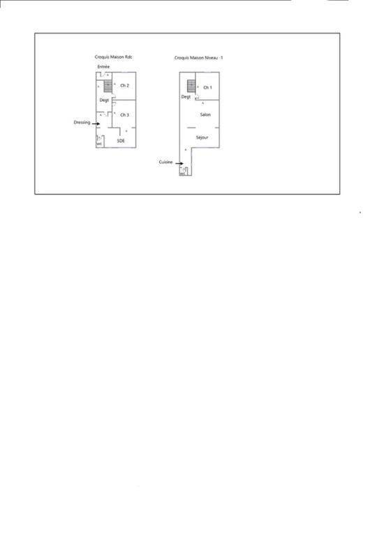
33130 - BEGLES - BARRIERE DE BEGLES. COUP DE COEUR pour cette maison INTEGRALEMENT RENOVEE CLES EN MAIN avec TERRASSE et ACCES INDEPENDANT pour VELOS. Distribuée sur deux niveaux, elle propose une cuisine EQUIPEE/AMENAGEE ouverte sur une belle pièce de vie avec salon, salle à manger donnant sur une TERRASSE de 30m2 EXPOSEE SUD-EST et SANS VIS-A-VIS, idéale pour profiter des journées ensoleillées en famille ou entre amis. Une chambre avec salle d'eau et bureau sur-mesure, un WC indépendant et un cellier complètent ce niveau. L'étage propose une belle SUITE PARENTALE avec deux DRESSING SUR-MESURE et BAIGNOIRE PRIVATIVE, double vasque et DOUCHE ITALIENNE, un ESPACE BUANDERIE, une troisième chambre, un WC. DOUBLE VITRAGE. VOLETS ROULANTS ELECTRIQUES. FIBRE OPTIQUE. CLIMATISATION REVERSIBLE NEUVE. Toiture RENOVEE récemment. POSSIBILITES STATIONNEMENT voiture. ACCES INDEPENDANT idéal pour deux roues et poussettes. Ce bien peut être VENDU MEUBLE. Proche NOMBREUX COMMERCES et MARCHE de la Barrière de Bègles, ECOLES et TRANSPORTS. A moins de 10min A PIED DU TRAM C, proche BUS (lignes 15 et 31). A moins de 5min A VELO des PLACES NANSOUTY et du XIV JUILLET. ACCES FACILE à la GARE SAINT-JEAN (10min à vélo, 15min en tram).
PRIX : 599 000 euros
DPE : B GES : B. Montant moyen estimé des dépenses annuelles d'énergie pour un usage standard établi à partir des prix de l'énergie de l'année 2021 : entre 890 euros et 1270 euros
Pour visiter et vous accompagner dans votre projet, contactez Arnaud FRAYRET, au 06 37 72 09 46 ou par courriel à a.frayret@proprietes-privees.com
Cette présente annonce a été rédigée sous la responsabilité éditoriale de Arnaud FRAYRET agissant sous le statut d'agent commercial immatriculé au RSAC Nantes 837775543 auprès de la SAS PROPRIETES PRIVEES, Réseau national immobilier, au capital de 40000 euros, 44 ALLÉE DES CINQ CONTINENTS - ZAC LE CHÊNE FERRÉ, 44120 VERTOU, RCS Nantes n° 487 624 777 00040, Carte professionnelle T et G n° CPI 4401 2016 000 010 388 CCI Nantes-Saint Nazaire. Garantie GALIAN - 89 rue de la Boétie, 75008 Paris.
Mandat réf : 391661 - Le professionnel garantit et sécurise votre projet immobilier. (3.28 % honoraires TTC à la charge de l'acquéreur.)

Arnaud FRAYRET (EI) Agent Commercial - Numéro RSAC : STRASBOURG 837775543 - .
Les informations sur les risques auxquels ce bien est exposé sont disponibles sur le site Géorisques : www. georisques. gouv. fr

Afficher plus de détails

Informations sur ce bien :

L'intérieur :

  • 4 pièces
  • 120 m²
    Informations complémentaires
    Surface habitable : 120 m²
  • 3 Chambres

Autres :

  • Nombre de niveaux :
    1
Synthèse
Maison à Bordeaux
599 000 €
Surface : 120 m²
Prix au m² : 4 992 €
Transaction :
Achat
Référence :
391661SARY
Date de publication :
Aujourd'hui à 18:20
Maison - 120 m² - 4 pièces
Performance énergétique
A
B
C
D
E
F
G
Gaz à effet de serre
A
B
C
D
E
F
G
Agent
Propriétés Privées
Propriétés Privées
Arnaud FRAYRET
Appeler
Écrire
Mettre en avant cette annonce
Signaler une erreur

Localisation :

Performance énergétique :

Logement économe
A
B
70
kWh/m²/an
10
kg CO₂/m²/an
C
D
E
F
G
Logement énergivore
Faible émission de CO₂
A
B
10
kg CO₂/m²/an
C
D
E
F
G
Forte émission de CO₂
Date du diagnostic : 05 octobre 2024
Annonces similaires
Annonces immobilières récentes