• Appartement - 164 m² - 6 pièces
  • Appartement - 164 m² - 6 pièces
  • Appartement - 164 m² - 6 pièces
650 000 €
164 m²
6 pièces

Description :

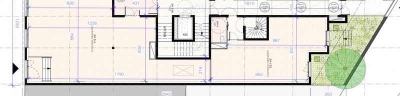
LOCALISATION IDEALE POUR PLATEAU AMENAGEABLE DANS UNE MAISON MEDICALE

Idéalement implantée à Bordeaux, cette maison médicale à L'architecture soignée offre un environnement professionnel agréable, conçu pour favoriser des conditions de travail optimales et permettre à la patientèle des consulter au même endroit des praticiens aux spécialités différentes.

Vous trouverez dans cette établissement à taille humaine un plateau de 164m2 entièrement aménageable. Façonnez cet espace en fonction de vos besoins professionnels, l'architecte de l'ouvrage est disponible pour vous accompagnez dans la conception et la réalisation de votre projet.

Le site propose des équipements de qualité, pensés pour conjuguer confort et efficacité au quotidien : un ascenseur compatible avec le transport de brancards, une consommation énergétique optimisée grâce à l'association d'une pompe à chaleur et de panneaux solaires, une ventilation assurant un renouvellement d'air régulier de 30 m³/h par personne, ainsi qu'un traitement acoustique renforcé pour préserver la confidentialité des échanges au sein des cabinets. Notez que ce plateau au rez-de-chaussée offre la possibilité si vous le souhaitez de ne pas avoir à participer aux charges de copropriété concernant l'ascenseur et les parties communes au dernier étage.

Votre nouvel environnement professionnel à votre image n'attends plus que vous.

- Prix HT : 650 000 €
- Prix TTC : 780 000 €
- Prix Fini HT : 748?460 €
- Prix Fini TTC : 898 152€
- Frais de Notaires Réduits
- Garanties
- ...

LOCALISATION IDEALE POUR PLATEAU AMENAGEABLE DANS UNE MAISON MEDICALE

Honoraires à la charge du vendeur. Dans une copropriété de 19 lots. Aucune procédure n'est en cours. DPE en cours. Les informations sur les risques auxquels ce bien est exposé sont disponibles sur le site Géorisques : georisques.gouv.fr.

Votre conseiller RH Patrimoine : Maxime HERVE
Agent commercial (Entreprise individuelle)
RSAC 133095555 J
RCP 13309666 J

Afficher plus de détails

Informations sur ce bien :

L'intérieur :

  • 6 pièces
  • 164 m²

L'extérieur :

  • Parking

Les équipements :

  • Accès handicapé
  • Interphone
  • Digicode

Autres :

  • Chauffage :
    Individuel
  • Étage :
    RDC
    Informations complémentaires
    Nombre d'étages de la construction : 4

Copropriété :

  • Copropriété :
    Oui
  • Nombre de lots :
    19
Synthèse
Appartement à Bordeaux
650 000 €
Surface : 164 m²
Prix au m² : 3 963 €
Transaction :
Achat
Référence :
VA3049-RHPATRI
Date de publication :
Il y a plus de 7 jours
Appartement - 164 m² - 6 pièces
Agent
RH Patrimoine
RH Patrimoine
Maxime HERVE
Appeler
Écrire
Mettre en avant cette annonce
Signaler une erreur

Localisation :

L'adresse exacte n'est pas renseignée. Le bien se situe dans cette zone.
Annonces similaires
Annonces immobilières récentes