• Appartement - 95 m² - 5 pièces
  • Appartement - 95 m² - 5 pièces
  • Appartement - 95 m² - 5 pièces
  • Appartement - 95 m² - 5 pièces
330 183 €
95 m²
5 pièces
4 chambres

Description :

UNE QUALITÉ DE VIE EXCEPTIONNELLE AUX PORTES DE BORDEAUX

Floirac, cette charmante commune aux abords de Bordeaux, séduit par sa qualité de vie incomparable. Nichée entre les rives de la Garonne et les coteaux verdoyants, Floirac offre un cadre de vie paisible tout en étant proche de l'effervescence de la métropole bordelaise.

Bienvenue dans votre Nouveau Foyer :
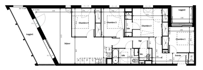
Situé au coeur de Floirac, cet appartement familial est un véritable havre de paix. Il se compose d'une entrée avec placard aménagé et d'un wc indépendant.
La pièce maîtresse de cet appartement est sans aucun doute son vaste séjour baigné de lumière naturelle et prolongé d'une vaste terrasse.

Cet appartement dispose de trois belles chambres, chacune équipée de son propre placard aménagé, d'une suite parentale avec salle d'eau et placard aménagé et d'une salle de bain.

Une place de parking est également incluse avec cet appartement, vous assurant un accès facile et sécurisé à votre véhicule

UNE QUALITÉ DE VIE EXCEPTIONNELLE AUX PORTES DE BORDEAUX

Honoraires à la charge du vendeur. Dans une copropriété de 207 lots. Aucune procédure n'est en cours. DPE en cours. Les informations sur les risques auxquels ce bien est exposé sont disponibles sur le site Géorisques : georisques.gouv.fr.

Votre conseiller RH Patrimoine : Marc VEYRET
Agent commercial (Entreprise individuelle)

Afficher plus de détails

Informations sur ce bien :

L'intérieur :

  • 5 pièces
  • 95 m²
  • 4 Chambres
  • 1 Salle de bain
  • 1 Salle d'eau
  • 2 Toilettes
  • Séjour de 32 m²

L'extérieur :

  • 2 Terrasses
  • Parking
  • Box

Autres :

  • Étage :
    RDC

Copropriété :

  • Copropriété :
    Oui
  • Nombre de lots :
    207
Synthèse
Appartement à Bordeaux
330 183 €
Surface : 95 m²
Prix au m² : 3 476 €
Transaction :
Achat
Référence :
VA2654-RHPATRI
Date de publication :
Il y a plus de 7 jours
Appartement - 95 m² - 5 pièces
Agent
RH Patrimoine
RH Patrimoine
Marc VEYRET
Appeler
Écrire
Mettre en avant cette annonce
Signaler une erreur

Localisation :

L'adresse exacte n'est pas renseignée. Le bien se situe dans cette zone.
Annonces similaires
Annonces immobilières récentes