• Terrain constructible - 289 m²
  • Terrain constructible - 289 m²
  • Terrain constructible - 289 m²
  • Terrain constructible - 289 m²
  • Terrain constructible - 289 m²
  • Terrain constructible - 289 m²
58 200 €
289 m²

Description :

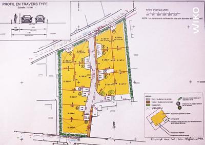
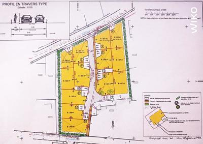
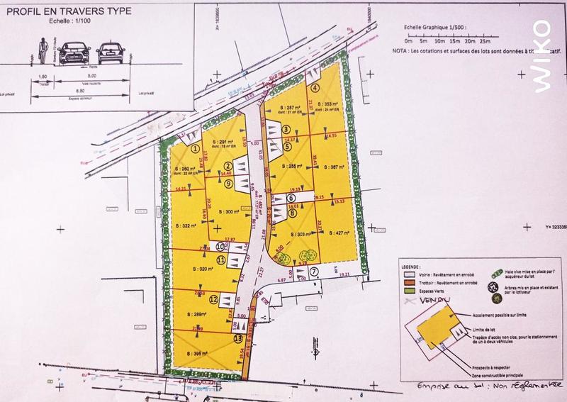
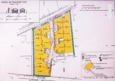
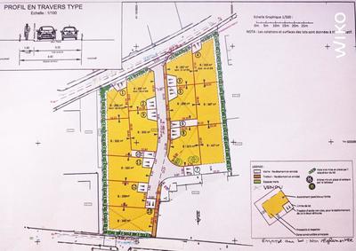
84500 BOLLENE – A DECOUVRIR RAPIDEMENT EN EXCLUSIVITE – TERRAIN PLAT & VIABILISE DE 289M² – LOT 12 – PISCINABLE – LIBRE CONSTRUCTEUR – DANS CHARMANT PETIT LOTISSEMENT AGREABLE, CALME & TRES BIEN DESSERVI – POSSIBILITE DE MIXER HABITATION & PROFESSION LIBERALE – ETUDE DE SOL REALISEE
– JOURNEE DE VISITE PROGRAMMEE CE MARDI 02/12/2025 JUSQU'A 14H –
efficity, l'agence qui estime votre bien en ligne, vous propose de découvrir en EXCLUSIVITE avec Raphaël Deloche, ce terrain constructible idéalement situé rue Jules Verne, dans un environnement calme et verdoyant, à proximité immédiate des commodités : écoles, commerces, transports et accès autoroute. Vous pourrez ici construire la maison idéale, de PLEIN PIED OU ETAGE, avec terrasse, piscine et garage tout en conservant un bout de jardin.
Constructions destinées à l'implantation de profession libérales, médicales ou apparentées autorisées.
Emprise au sol non règlementée – Superficie plancher 200m²
Etude de sols G1 réalisées –
DEPECHEZ-VOUS : 7 terrains disponibles sur 13.

Les atouts du terrain :
Libre constructeur
Terrain plat et paisible
Viabilisé, prêt à bâtir
Piscinable
Surface plancher jusqu'à 200 m² possible
Emprise au sol : non règlementée
Construction en limite de parcelle ou distance de 3m
Secteur recherché et agréable à vivre

Informations complémentaires :
15 % de la parcelle à conserver en espace vert
Accompagnement constructeur possible
Plusieurs parcelles disponibles de différentes tailles sur le lotissement

Cette parcelle n'attend plus que vous et votre petit cocoon...Une belle opportunité pour concrétiser votre projet de maison dans un cadre serein et pratique !
Renseignements & visites avec Raphaël Deloche par téléphone ou par mail
Les informations sur les risques auxquels ce bien est exposé sont disponibles sur le site Georisque : georisques. gouv. fr
Raphaël Deloche - EI - est Agent Commercial mandataire en immobilier, immatriculé au Registre Spécial des Agents Commerciaux du Tribunal de Commerce de Avignon sous le n°850822784.
Siège social du mandant : effiCity, 48 avenue de Villiers - 75017 PARIS - Société par Actions Simplifiée, société au capital de 132 373,05 euros, immatriculée au RCS Paris 497 617 746 et titulaire de la Carte professionnelle CPI 7501 2015 000 002 025 - CCI Paris IDF - Caisse de Garantie : GALIAN Assurances 89 rue de la Boétie 75008 Paris

Afficher plus de détails

Informations sur ce bien :

L'intérieur :

  • 289 m²

Les équipements :

  • Accès handicapé

Terrain :

  • Viabilisé :
    Non
Synthèse
Terrain constructible à Bollène
58 200 €
Surface : 289 m²
Prix au m² : 201 €
Transaction :
Achat
Référence :
193822
Mandat :
Exclusif
Date de publication :
Il y a plus de 7 jours
Terrain constructible - 289 m²
Agent
RESEAU EFFICITY
RESEAU EFFICITY
M. Raphaël Deloche
Appeler
Écrire
Mettre en avant cette annonce
Signaler une erreur

Localisation :

Annonces similaires
Annonces immobilières récentes