Maison de ville - 119 m² - 7 pièces à Bain-de-Bretagne
Description :
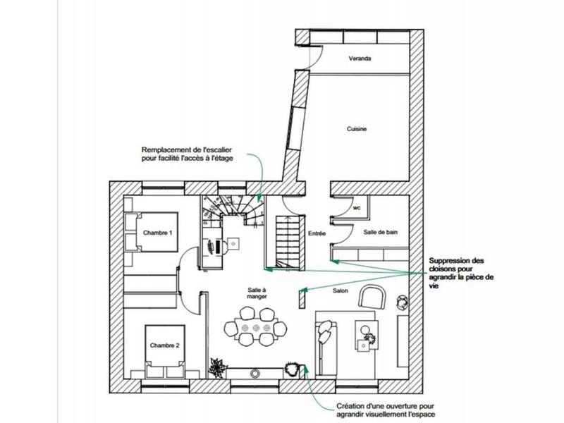
Bain de Bretagne,35470, MAISON DE VILLE DE 120 M2 à BAIN DE BRETAGNE, centre. Maison proche de tous commerces dans une rue calme avec garage et jardin de 400 m2 à l'arrière Maison offrant de nombreuses possibilités d'aménagement. Au RdC: belle pièce de près de 21 m2 avec sa salle d'eau pouvant être facilement transformée en studio avec son entrée indépendante . garage, chaufferie et atelier. Au 1 er étage : cuisine de 14 m2 prolongée par une véranda, séjour de 16 m2, 3 chambres de 9 m2 environ,1 bureau,salle de bains et wc séparé. Au 2 ème étage : 2 ème salle de bains, 3 petites chambres ou bureaux/ salles de jeux Vous disposez également d'une cave et d'un abri de jardin Le terrain de 300 m2 à l'arrière est clôturé et très calme. La maison est équipée d'une pompe à chaleur, faible consommations énergétiques, classée B Idéal pour famille ou investisseur grâce au potentiel locatif (cf possibilité studio indépendant) Vous trouverez à la suite des photos, des suggestions de réorganisation et d'aménagements préconisées par une architecte d'intérieur. BELLE OPPORTUNITÉ A SAISIR POUR UNE FAMILLE OU/ET UN INVESTISSEUR Le prix indiqué comprend les honoraires de négociation qui se montent à 5% TTC du prix affiché, ces honoraires sont à la charge exclusive de l'acquéreur. DPE: 92, soit B, GES: 3, soit A. Guy PEUZE, Agent Commercial immatriculé au RSAC de RENNES sous le numéro 93288673200019 - A la lucarne de l'immobilier - Ref. 84518
Informations sur ce bien :
L'intérieur :
-
7 pièces
-
119 m²Informations complémentairesSurface habitable : 119 m²
-
6 Chambres
-
3 Salles de bain
-
Séjour de 16 m²
-
Cave
L'extérieur :
-
2 ParkingsInformations complémentairesExtérieur
-
GarageInformations complémentaires1 place
Les équipements :
-
Cheminée
Autres :
-
Chauffage :Individuel, Radiateur
-
Année de construction :1948
-
État :Travaux à prévoir
-
Exposition :Sud
Localisation :
Performance énergétique :
Ventes de maisons à proximité
- 1 vente de maison à Pancé (4.5 km)
- 9 ventes de maisons à Poligné (4.9 km)
- 3 ventes de maisons à La Noë-Blanche (6.2 km)
- 9 ventes de maisons à Pléchâtel (7.8 km)
- 3 ventes de maisons au Sel-de-Bretagne (8.1 km)
- 3 ventes de maisons à La Dominelais (8.8 km)
- 3 ventes de maisons à Saint-Malo-de-Phily (8.9 km)
- 3 ventes de maisons à Ercé-en-Lamée (9.2 km)
- 8 ventes de maisons à Messac (9.6 km)