• Appartement - 63 m² - 3 pièces
  • Appartement - 63 m² - 3 pièces
  • Appartement - 63 m² - 3 pièces
  • Appartement - 63 m² - 3 pièces
  • Appartement - 63 m² - 3 pièces
  • Appartement - 63 m² - 3 pièces
  • Appartement - 63 m² - 3 pièces
92 000 €
63 m²
3 pièces
2 chambres

Description :

Investissement serein à Avion: T3 récent vendu loué, de 63 m2, dans une résidence de 2011, parfaitement entretenue et verdoyante

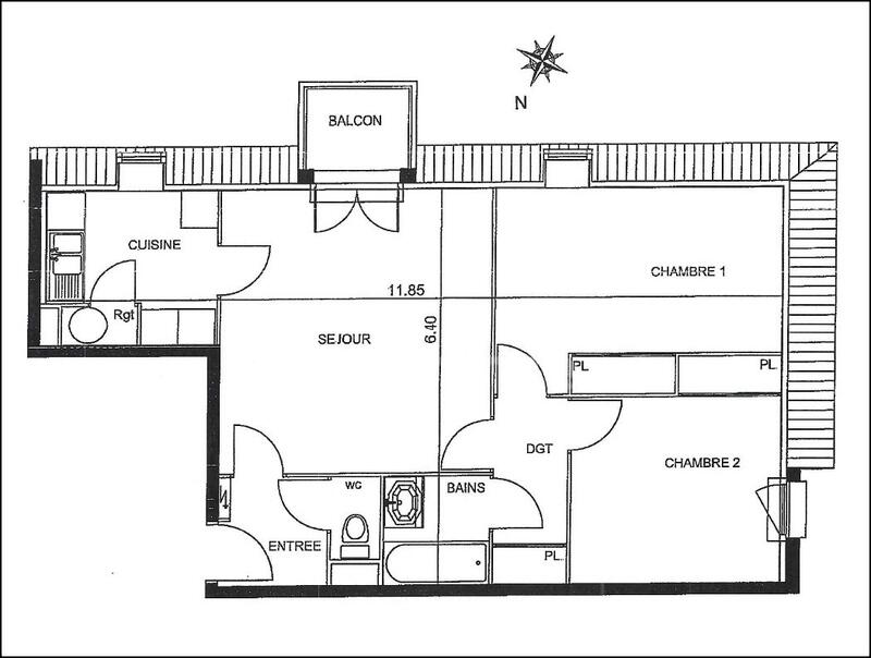
Le bien, en très bon état, se compose d'une entrée, d'un séjour lumineux de 20 m2 avec un accès au balcon orienté sud, une cuisine avec son cellier, deux belles chambres de 14,5 m2 et 11 m2, une salle de bain et un WC séparé.

En plus, une place de parking privée est incluse.

La résidence est composée de petits immeubles qui profitent d'un cadre de vie calme, à seulement 1 km de la gare de Lens.

Actuellement sous bail (depuis 01/2018) avec un loyer de 544 € HC, ce bien garantit une rentabilité immédiate au sein d'une copropriété saine, à deux pas des commodités.

Je reste à votre disposition 7j/7 pour vos questions ou convenir d'une visite.

Propriétaires ? Je vous offre l'estimation et une étude immobilière précise de votre bien.
Contactez-moi pour convenir d'un rendez-vous.

Votre Conseiller Immobilier, Grégory BETENCOURT.

Nombre de lots de la copropriété : 212, Montant moyen annuel de la quote-part de charges (budget prévisionnel) : 586€ soit 48€ par mois. Les honoraires d'agence sont à la charge de l'acquéreur, soit 8,24% TTC du prix hors honoraires.
Le Diagnostic de Performance Énergétique(DPE) a été réalisé selon une méthode valable mais non fiable et non-opposable.
Les informations sur les risques auxquels ce bien est exposé sont disponibles sur le site Géorisques : www. georisques. gouv. fr.

Réseau Immobilier CAPIFRANCE - Votre agent commercial (RSAC N°953 596 913 - Greffe de ARRAS) Grégory BETENCOURT Entrepreneur Individuel 06 15 17 02 54 - Réf.949323

Afficher plus de détails

Informations sur ce bien :

L'intérieur :

  • 3 pièces
  • 63 m²
    Informations complémentaires
    Surface habitable : 63 m²
  • 2 Chambres
  • 1 Salle de bain
  • 1 Toilette
  • Séjour de 20 m²

L'extérieur :

  • Balcon
  • Parking

Les équipements :

  • Fibre optique

Autres :

  • Chauffage :
    Électrique
  • Année de construction :
    2010
  • État :
    État de l'immeuble : - ravalement : Standard -, Intérieur : Très bon
  • Exposition :
    Sud
  • Étage :
    2nd étage (dernier)
    Informations complémentaires
    Nombre d'étages de la construction : 2

Copropriété :

  • Copropriété :
    Oui
  • Nombre de lots :
    212
  • Charges annuelles :
    586,08 €
Synthèse
Appartement à Avion
92 000 €
Surface : 63 m²
Prix au m² : 1 460 €
Transaction :
Achat
Référence :
340934031791
Mandat :
Exclusif
Date de publication :
Aujourd'hui à 08:14
Appartement - 63 m² - 3 pièces
Performance énergétique
A
B
C
D
E
F
G
Gaz à effet de serre
A
B
C
D
E
F
G
Agent
CAPIFRANCE
CAPIFRANCE
Monsieur Grégory BETENCOURT
Appeler
Écrire
Mettre en avant cette annonce
Signaler une erreur

Localisation :

Performance énergétique :

Logement économe
A
B
C
D
187
kWh/m²/an
9
kg CO₂/m²/an
E
F
G
Logement énergivore
Faible émission de CO₂
A
B
9
kg CO₂/m²/an
C
D
E
F
G
Forte émission de CO₂
Date du diagnostic : 23 janvier 2021
Annonces similaires
Annonces immobilières récentes