• Appartement - 48 m² - 2 pièces
225 000 €
48 m²
2 pièces
1 chambre

Description :

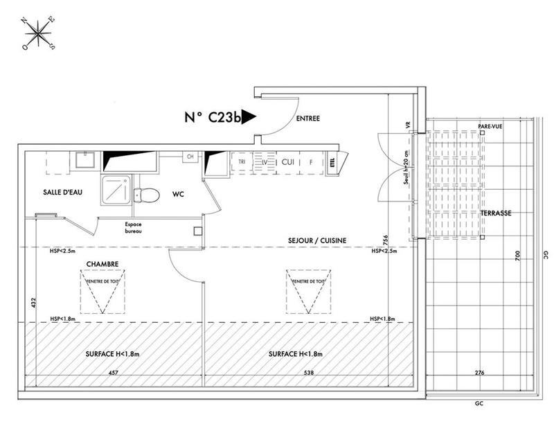
Votre Agence Hello Home vous propose proche du coeur de ville d'Aussonne un appartement 2 pièces dans une copropriété intimiste de 35 logements.

Cette appartement dispose d'une pièces de vie d'environ 26m² ouvert sur une belle terrasse d'environ 20m², d'une chambre de 12m², d'une salle d'eau et d'un WC indépendant.
Étant au dernier étage et avec un toit mansardé, les pièces disposent d'une surface complémentaire non comptabilisé en m² qui agrandissent l'espace.

Située à 6 minutes du centre de la commune, dans le secteur d'avenir des Ramassiers, la résidence vous offre un cadre de vie doux et convivial. Organisés autour d'un potager partagé et d'un parc de 2500 m² parcouru d'un agréable chemin piétonnier, découvrez des appartements répartis en 3 bâtiments de 1 à 2 étages seulement et 10 villas.

Les plus : - Résidence neuve avec un équipement de qualité. - idéalement située - Frais de notaire réduits.
N'hésitez pas à nous contacter pour organiser une visite !

Afficher plus de détails

Informations sur ce bien :

L'intérieur :

  • 2 pièces
  • 48 m²
  • 1 Chambre
  • 1 Salle d'eau
  • 1 Toilette

L'extérieur :

  • Balcon
  • Parking

Autres :

  • Année de construction :
    2025
  • État :
    Refait à neuf
  • Étage :
    2nd étage (dernier)
    Informations complémentaires
    Nombre d'étages de la construction : 2
Synthèse
Appartement à Aussonne
225 000 €
Surface : 48 m²
Prix au m² : 4 688 €
Transaction :
Achat
Référence :
99
Date de publication :
Il y a plus de 7 jours
Appartement - 48 m² - 2 pièces
Agent
Hello Home
Hello Home
Appeler
Écrire
Mettre en avant cette annonce
Signaler une erreur

Localisation :

L'adresse exacte n'est pas renseignée. Le bien se situe dans cette zone.
Annonces similaires
Annonces immobilières récentes