• Appartement - 81 m² - 4 pièces
  • Appartement - 81 m² - 4 pièces
  • Appartement - 81 m² - 4 pièces
  • Appartement - 81 m² - 4 pièces
  • Appartement - 81 m² - 4 pièces
  • Appartement - 81 m² - 4 pièces
  • Appartement - 81 m² - 4 pièces
  • Appartement - 81 m² - 4 pièces
204 000 €
81 m²
4 pièces
3 chambres

Description :

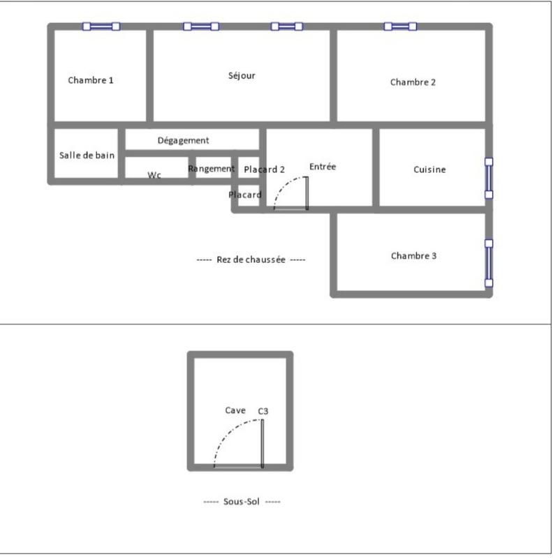
Dans le quartier de la Rose des Vents, à Aulnay sous bois, je vous propose un grand appartement de 80m2, bien agencé et lumineux, au rez-de-chaussée.
Il est composé d'une grande entrée, d'un grand salon avec 2 grandes fenêtres, 3 chambres lumineuses dont une donnant sur un balcon, une cuisine aménagée, une salle de bain, des toilettes séparées, et de nombreux rangements.
Ce bien possède également une cave.
L'immeuble est sécurisé avec un digicode et un interphone. Des places de parking sont accessibles aux abords de l'immeuble.
Tout proche, à quelques minutes à pieds, vous trouverez des groupes scolaires, une mairie annexe, un gymnase, des commerces de proximité, des arrêts de bus.
A quelques minutes en voiture, Centre commercial Sevran Beaudottes, la gare RER B et l'hôpital régional Robert Ballanger.
Pour se promener ou faire du sport, le Parc Du Sausset est à quelques minutes en voiture.
Nombre de lots de la copropriété : 898, Montant moyen annuel de la quote-part de charges (budget prévisionnel) : 4588€ soit 382€ par mois. Les honoraires sont à la charge du vendeur.
Les informations sur les risques auxquels ce bien est exposé sont disponibles sur le site Géorisques : www. georisques. gouv. fr.

Réseau Immobilier CAPIFRANCE - Votre agent commercial (RSAC N°910 084 649 - Greffe de BOBIGNY) Philippe ROYER Entrepreneur Individuel 06 10 98 97 81 - Réf.883890

Afficher plus de détails

Informations sur ce bien :

L'intérieur :

  • 4 pièces
  • 81 m²
    Informations complémentaires
    Surface habitable : 81 m²
  • 3 Chambres
  • Cuisine aménagée
    Informations complémentaires
    Aménagée
  • 1 Salle de bain
  • 1 Toilette
  • Séjour de 18 m²
  • Cave

Les équipements :

  • Fibre optique
  • Interphone

Autres :

  • Chauffage :
    Gaz

Copropriété :

  • Copropriété :
    Oui
  • Nombre de lots :
    898
  • Charges annuelles :
    4 587,96 €
  • Taxe foncière :
    1 200 €
Synthèse
Appartement à Aulnay-sous-Bois
204 000 €
Surface : 81 m²
Prix au m² : 2 519 €
Transaction :
Achat
Référence :
340931817486
Mandat :
Exclusif
Date de publication :
Il y a plus de 7 jours
Appartement - 81 m² - 4 pièces
Performance énergétique
A
B
C
D
E
F
G
Gaz à effet de serre
A
B
C
D
E
F
G
Agent
CAPIFRANCE
CAPIFRANCE
Monsieur Philippe ROYER
Appeler
Écrire
Mettre en avant cette annonce
Signaler une erreur

Localisation :

Performance énergétique :

Logement économe
A
B
C
D
187
kWh/m²/an
31
kg CO₂/m²/an
E
F
G
Logement énergivore
Faible émission de CO₂
A
B
C
D
31
kg CO₂/m²/an
E
F
G
Forte émission de CO₂
Date du diagnostic : 25 novembre 2024
Annonces similaires
Annonces immobilières récentes