Appartement - 92 m² - 4 pièces à Arçonnay
favoris
344 600 €
Description :
À vendre Appartement neuf 4 pièces en rez-de-chaussée avec garage
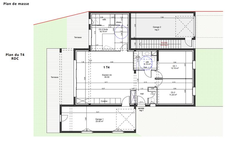
Venez découvrir ce spacieux appartement de 92,40 m2, offrant confort et praticité dans un cadre moderne.
Espace de vie lumineux : 45,50 m2
Chambre 1 : 12,15 m2
Chambre 2 : 11,20 m2
Suite parentale : 16,70 m2
Salle de bain contemporaine : 5,15 m2
WC séparés : 1,70 m2
En supplément, bénéficiez d'un garage privatif de 23 m2, directement accessible.
Cet appartement neuf en rez-de-chaussée séduit par ses volumes généreux, sa suite parentale et son grand espace de vie, idéal pour une famille ou un premier achat.
Afficher plus de détails
Informations sur ce bien :
L'intérieur :
-
4 pièces
-
92 m²
-
3 Chambres
-
Sans cuisineInformations complémentairesSans cuisine
-
1 Salle de bain
-
1 Toilette
-
Séjour de 45 m²
L'extérieur :
-
Terrasse
-
2 Parkings
-
Box
Les équipements :
-
Climatisation
-
Alarme
-
Interphone
Autres :
-
Chauffage :Collectif, Radiateur, Électrique
-
Année de construction :2026
-
Exposition :Ouest
-
Étage :RDCInformations complémentairesNombre d'étages de la construction : 1
Copropriété :
-
Copropriété :Oui
Synthèse
Appartement à Arçonnay
344 600 €
Surface :
92 m²
Prix au m² :
3 746 €
Transaction :
Achat
Référence :
24092025VC
Date de publication :
Il y a plus de 7 jours
Contacter l'annonceur
Agent
ANGLE IMMOBILIER
Mettre en avant cette annonce
Signaler une erreur
Localisation :
L'adresse exacte n'est pas renseignée. Le bien se situe dans cette zone.
Performance énergétique :
Bien non soumis au Diagnostic de Performance Énergétique (DPE)
Ventes d'appartements à proximité
- 1 vente d'appartement à Champfleur (3 km)
- 31 ventes d'appartements à Alençon (4 km)
- 2 ventes d'appartements à Villaines-la-Juhel (27.8 km)
- 6 ventes d'appartements à Argentan (39.3 km)
- 1 vente d'appartement à La Chapelle-Saint-Aubin (40.8 km)
- 1 vente d'appartement à Trangé (41 km)
- 87 ventes d'appartements à Bagnoles-de-l'Orne (41.1 km)
- 5 ventes d'appartements à Coulaines (42.4 km)
- 264 ventes d'appartements au Mans (44.2 km)