• Appartement - 19 m² - 1 pièce
  • Appartement - 19 m² - 1 pièce
  • Appartement - 19 m² - 1 pièce
  • Appartement - 19 m² - 1 pièce
  • Appartement - 19 m² - 1 pièce
  • Appartement - 19 m² - 1 pièce
71 000 €
19 m²
1 pièce

Description :

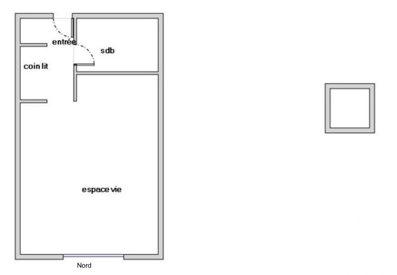
Iad France - Amandine Debez vous propose : Joli Studio cabine Idéal pour Investissement Locatif. Situation exceptionnelle pour cet appartement au sein de la station de Piau Engaly, au pied des pistes, de l'espace balnéo et de l'espace commercial. C'est aussi le pied à terre idéal pour les amoureux de la randonnées. La station propose également de nombreuses activités estivale pendant l'été. L'appartement se compose d'une pièce de vie regroupant un espace salon et une kitchenette équipée, une alcôve avec lits superposés et une salle d'eau avec WC. Le tout est bien agencé et optimisé pour offrir tout le confort nécessaire pour un séjour au ski. L'appartement est vendu entièrement meublé, libre dès le mois d'Avril, il est en très bon état et ne nécessite aucun travaux. Un casier à ski privatif complète ce bien. Ne ratez pas cette opportunité d'investissement d'un pied à terre dans la station la plus enneigée des Pyrénées ! La presente annonce immobiliere vise 2 lots situés dans une copropriété de 102 lots au total et ne faisant l'objet d'aucune procédure en cours citée à l'article L. 721-1 du code de la construction et de l'habitation. Montant moyen mensuel de charges déclaré par le vendeur : 60€ par mois (soit 720 € annuel). Honoraires d'agence à la charge du vendeur. Information d'affichage énergétique sur ce bien : classe ENERGIE D indice 258 et classe CLIMAT B indice 8. Les informations sur les risques auxquels ce bien est exposé, y compris l'obligation légale de débroussaillement, sont disponibles sur le site Géorisques : http://www.georisques.gouv.fr. La présente annonce immobilière a été rédigée sous la responsabilité éditoriale de Mme Amandine Debez mandataire indépendant en immobilier (sans détention de fonds), agent commercial de la SAS I@D France immatriculé au RSAC de TARBES sous le numéro 850879107, titulaire de la carte de démarchage immobilier pour le compte de la société I@D France SAS.

Afficher plus de détails

Informations sur ce bien :

L'intérieur :

  • 1 pièce
  • 19 m²
    Informations complémentaires
    Surface habitable : 19 m²
  • Cave

Autres :

  • Chauffage :
    Individuel, Radiateur, Électrique
  • Année de construction :
    1980
  • Mitoyenneté :
    Non
  • Étage :
    1er étage
    Informations complémentaires
    Nombre d'étages de la construction : 4

Copropriété :

  • Copropriété :
    Oui
  • Nombre de lots :
    102
  • Charges annuelles :
    720 €
Synthèse
Appartement à Aragnouet
71 000 €
Surface : 19 m²
Prix au m² : 3 737 €
Transaction :
Achat
Référence :
2041449
Date de publication :
Aujourd'hui à 11:37
Appartement - 19 m² - 1 pièce
Performance énergétique
A
B
C
D
E
F
G
Gaz à effet de serre
A
B
C
D
E
F
G
Agent
iad france
iad france
Amandine Debez
Appeler
Écrire
Mettre en avant cette annonce
Signaler une erreur

Localisation :

L'adresse exacte n'est pas renseignée. Le bien se situe dans cette zone.

Performance énergétique :

Logement économe
A
B
C
D
E
258
kWh/m²/an
8
kg CO₂/m²/an
F
G
Logement énergivore
Faible émission de CO₂
A
B
8
kg CO₂/m²/an
C
D
E
F
G
Forte émission de CO₂
Date du diagnostic : 29 octobre 2025
Annonces similaires
Annonces immobilières récentes