Maison - 210 m² - 5 pièces à Apt
favoris
106 000 €
Description :
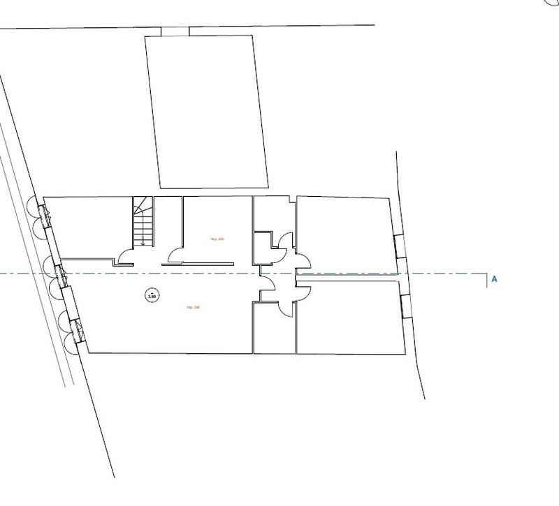
Exclusivité, Apt, à saisir, proche centre-ville, au premier étage, Partie de maison, à restaurer de 130 m² environ, composée d'une cuisine ouverte sur la pièce de vie, salle d'eau, WC, trois chambres, + un immeuble entier sur deux niveaux, composé au rez-de-chaussée d'une ancienne écurie de 40 m² avec un étage de même mesure. Travaux à prévoir. Permis de construire accepté. Réelle opportunité ! Les informations sur les risques auxquels ce bien est exposé sont disponibles sur le site Géorisques : www.georisques.gouv.fr.
Afficher plus de détails
Informations sur ce bien :
L'intérieur :
-
5 pièces
-
210 m²Informations complémentairesSurface habitable : 210 m²
-
3 Chambres
-
Cuisine
-
1 Salle d'eau
-
1 Toilette
Autres :
-
Année de construction :1900
-
Travaux à prévoir :Oui
-
Mitoyenneté :Non
Copropriété :
-
Nombre de lots :2
Synthèse
Maison à Apt
106 000 €
Surface :
210 m²
Prix au m² :
505 €
Transaction :
Achat
Référence :
AP-APT-12645
Date de publication :
Aujourd'hui à 08:19
Contacter l'annonceur
Agent
Square Habitat Apt
Nathalie POISSONNIER
Mettre en avant cette annonce
Signaler une erreur
Localisation :
L'adresse exacte n'est pas renseignée. Le bien se situe dans cette zone.
Performance énergétique :
Date du diagnostic :
02 décembre 2025
Ventes de maisons à proximité
- 34 ventes de maisons à Saignon (3.1 km)
- 42 ventes de maisons à Gargas (4.3 km)
- 19 ventes de maisons à Villars (5.3 km)
- 7 ventes de maisons à Caseneuve (7.2 km)
- 49 ventes de maisons à Saint-Saturnin-lès-Apt (7.6 km)
- 22 ventes de maisons à Bonnieux (8.5 km)
- 38 ventes de maisons à Roussillon (8.7 km)
- 7 ventes de maisons à Rustrel (8.9 km)
- 16 ventes de maisons à Saint-Martin-de-Castillon (9.5 km)