Maison - 91 m² - 4 pièces à Aoste

favoris
  • Maison - 91 m² - 4 pièces
  • Maison - 91 m² - 4 pièces
  • Maison - 91 m² - 4 pièces
  • Maison - 91 m² - 4 pièces
  • Maison - 91 m² - 4 pièces
  • Maison - 91 m² - 4 pièces
  • Maison - 91 m² - 4 pièces
255 000 €
91 m²
4 pièces
3 chambres

Description :

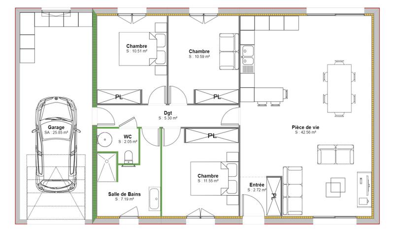
Et si votre projet de maison prenait enfin vie dans un cadre calme et verdoyant ?Je vous propose un projet de construction de maison individuelle neuve, situé sur la commune de Brégnier-Cordon, à seulement quelques minutes des principaux axes, dans un environnement recherché pour sa tranquillité.Le projet comprend une maison d’environ 90 m² habitables, fonctionnelle et lumineuse, implantée sur un terrain de 1256 m², idéale pour une vie de famille sereine.Les points forts du projet :?? Maison individuelle neuve?? Environ 90 m² habitables?? 3 chambres?? Belle pièce de vie conviviale et lumineuse?? Terrain 1256m² au calme?? Construction conforme RE2020, économe en énergie?? Projet entièrement personnalisable (plans, surfaces, aménagements)?? 10 m² supplémentaires offerts?? Pack décoration offert pour personnaliser votre intérieur?? Accompagnement de A à Z avec un interlocuteur unique?? Plus de 50 ans d’expertise Maisons PunchConstruire sa maison, ce n’est pas simplement acheter un bien immobilier, c’est concrétiser un projet de vie important.Mon rôle est de vous accompagner, de vous conseiller et de sécuriser chaque étape.?? Contactez-moi dès maintenant pour une étude de votre projet de construction.Prix incluant terrain, maison et raccordements (VRD / viabilités).Matthias PaquetResponsable secteur – Maisons PunchConstructeur de maisons individuelles

Afficher plus de détails

Informations sur ce bien :

L'intérieur :

  • 4 pièces
  • 91 m²
  • 3 Chambres
  • 1 Salle de bain

L'extérieur :

  • Garage

À proximité :

  • Accès voie rapide
  • Centre-ville
  • Commerces
  • Ecoles
  • Transports en commun

Autres :

  • Style :
    Traditionnelle
Synthèse
Maison à Aoste
255 000 €
Surface : 91 m²
Prix au m² : 2 802 €
Transaction :
Neuf
Référence :
11649 PAQUET Matthias
Date de publication :
Hier à 18:46
Maison - 91 m² - 4 pièces
Agent
Maisons Punch - Bourgoin Jallieu
Maisons Punch - Bourgoin Jallieu
Appeler
Écrire
Mettre en avant cette annonce
Signaler une erreur

Localisation :

L'adresse exacte n'est pas renseignée. Le bien se situe dans cette zone.
Annonces similaires
Annonces immobilières récentes