• Appartement - 67 m² - 3 pièces
  • Appartement - 67 m² - 3 pièces
  • Appartement - 67 m² - 3 pièces
  • Appartement - 67 m² - 3 pièces
  • Appartement - 67 m² - 3 pièces
115 500 €
67 m²
3 pièces
2 chambres

Description :

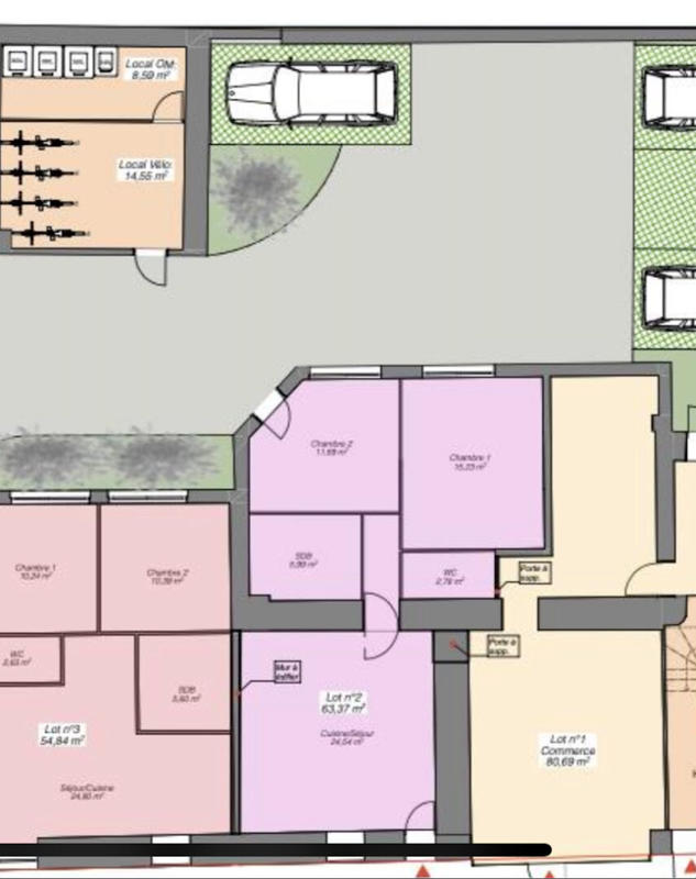
PLATEAU A AMENAGER EN APPARTEMENT 2CH AVEC PARKING - ANGERS COEUR DES JUSTICES Ce bien est proposé à la VENTE INTERACTIVE. Prix de départ Frais d'agence inclus : 115 500 euros Début des offres d'achat en ligne : le 18/12/2025 à 18h Fin des offres d'achat en ligne : le 19/12/2025 à 18h Palier : 2000 euros Les honoraires seront calculés à l'issue de la vente interactive. Au coeur du quartier des Justices, 41 Route de la Pyramide à Angers, dans une ancienne bâtisse de charme. APPARTEMENT 2CH  AVEC PARKING PRIVATIF. Dans une petite copropriété intégralement rénovée avec de faibles charges, futur appartement au rez-de-chaussée à créer comprenant deux chambres, un salon séjour - cuisine, une salle de douche. (plan à disposition + devis) Place de parking IDEAL PRIMO ACCEDANT OU DEFICIT FONCIER. Plans et devis fournis Lot 2 Visite obligatoire avant de participer à la vente interactive entre le 02 décembre 2025 et le 17 décembre 2025 sur demande au : O6 70 00 64 32 Inscription et enchères sur : https://www.winimmoencheres.com Ludovic Jouet - Agent commercial RSAC : 830 789 285 Ludovic JOUET (EI) Agent Commercial - Numéro RSAC : 830 789 285 - ANGERS.

Afficher plus de détails

Informations sur ce bien :

L'intérieur :

  • 3 pièces
  • 67 m²
    Informations complémentaires
    Surface habitable : 67 m²
  • 2 Chambres
    Informations complémentaires
    Chambre 1 : Surface de 13 m², 1er étage
    Chambre 2 : Surface de 15 m², 1er étage
  • 1 Salle d'eau de 6 m²
    Informations complémentaires
    1er étage
  • 1 Toilette de 2 m²
    Informations complémentaires
    1er étage

L'extérieur :

  • Parking

Les équipements :

  • Tout à l'égout
  • Double vitrage

Autres :

  • Année de construction :
    1900
  • État :
    Extérieur : Bon
  • Étage :
    RDC
    Informations complémentaires
    Nombre d'étages de la construction : 2
  • Nombre de niveaux :
    1

Copropriété :

  • Charges annuelles :
    700 €
  • Taxe foncière :
    600 €
Synthèse
Appartement à Angers
115 500 €
Surface : 67 m²
Prix au m² : 1 724 €
Transaction :
Achat
Référence :
1063LJ
Date de publication :
Il y a plus de 7 jours
Appartement - 67 m² - 3 pièces
Performance énergétique
A
B
C
D
E
F
G
Gaz à effet de serre
A
B
C
D
E
F
G
Agent
OBIMMO Angers - OBIMMO Angers
OBIMMO Angers - OBIMMO Angers
Ludovic JOUET
Appeler
Écrire
Mettre en avant cette annonce
Signaler une erreur

Localisation :

L'adresse exacte n'est pas renseignée. Le bien se situe dans cette zone.

Performance énergétique :

Logement économe
A
B
C
D
250
kWh/m²/an
50
kg CO₂/m²/an
E
F
G
Logement énergivore
Faible émission de CO₂
A
B
C
D
50
kg CO₂/m²/an
E
F
G
Forte émission de CO₂
Date du diagnostic : 08 avril 2025
Annonces similaires
Annonces immobilières récentes